IEHIME いえひめ

works
家族も空間もつながる家
工務店 伊大建設
延床面積 123.71㎡(37.42坪)
建材 30坪以下
こだわり 子育てファミリーの家
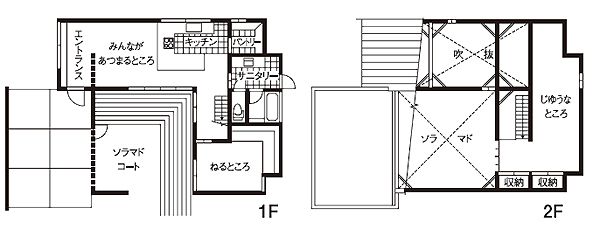
家族も空間もつながる家
 クライアントの希望は、明るく開放的であること。そこで、キッチン、リビングを成す“みんなのあつまるところ”を吹き抜けにし、ソラマドに面することで自然光の明るさを十分に確保。全空間に使用する無垢材の床、漆喰の壁は安心感だけでなく、空間を明るく見せる効果も期待できる。コの字型のキッチンは造作で、ナチュラルな空間に溶け込むようデザイン。作業するスペースと家族が憩うスペースを分け、奥様の気持ちの切り替えもスムーズに。クライアントとの打合せの中で、隣にある母屋とのつながりも意識。両親が野菜を育てる畑や母屋が見えるよう、キッチンや2階の窓を配置した。家族の空間は内に広がっているが、のどかな周囲の環境を取り入れ、外とのつながりも感じられるバランスのとれた住まいとなった。
about
いえひめぇ
イエプロ サイトはこちらから